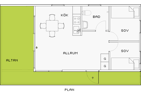
När du behöver extra utrymme är Gårdshuset det naturliga valet. Hemmakontor, gäststuga, egen lägenhet för dottern eller sonen, ateljé på tomten, gym och relax med bastu – eller kanske ett mindre fritidshus ? Ja, du vet säkert hur du kan använda 40 m2 bostadsyta.
Vad vi definitivt vet är att 40 m² rymmer betydligt mer än man kan tro. Gårdshuset är ett bevis på detta!
För ytterligare information kring typhusen hänvisar vi till våra faktablad för respektive hus.




